Haus Lydia – Aufstockung in Holzbau, Prutz
Altes Haus, neues Kapitel.
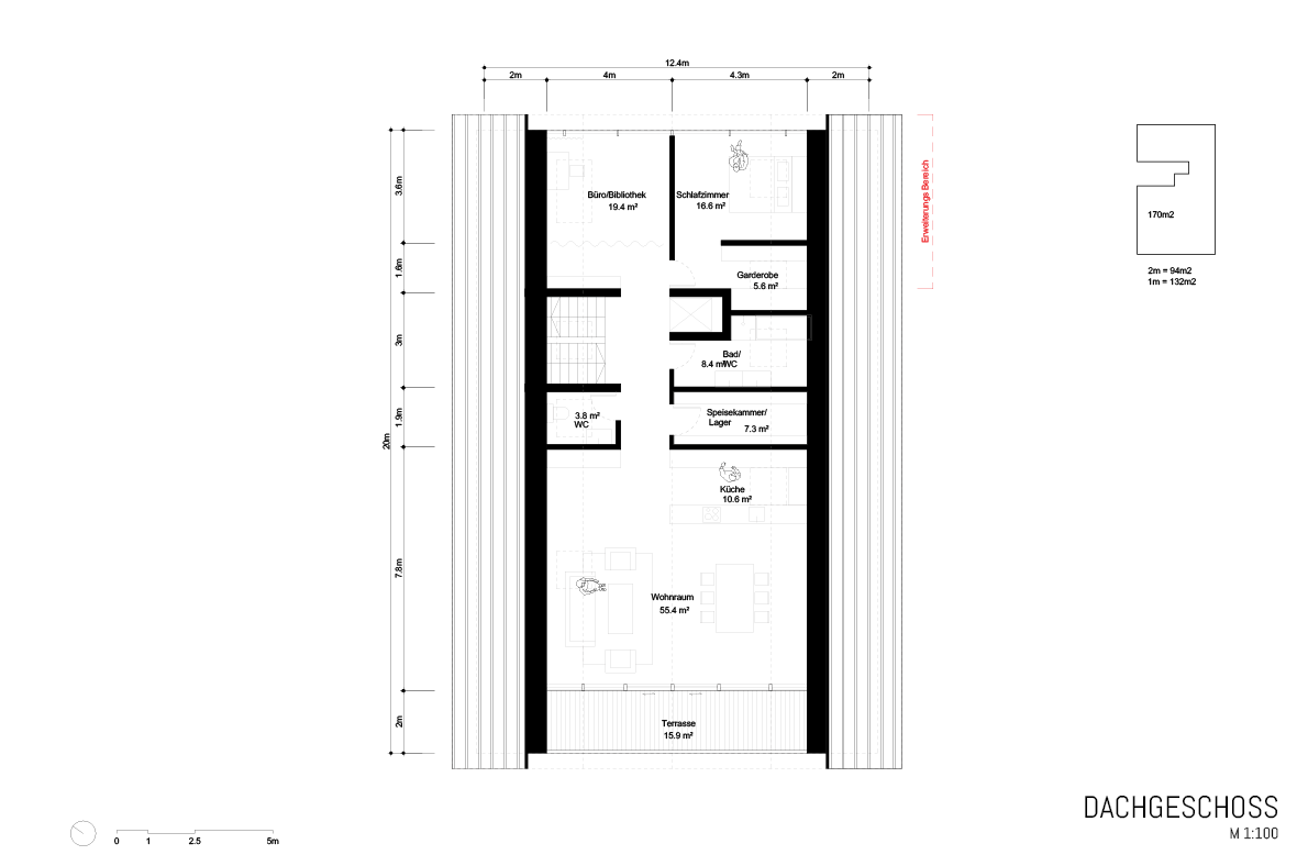
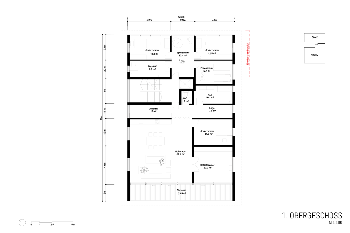
In Prutz sollte ein 80 Jahre altes Wohnhaus am Auweg zu neuem Leben erwachen. Die Idee: das Bestandsgebäude modernisieren und mit einer leichten Holzbau-Aufstockung erweitern. Unten bleibt die Garage, im ersten Obergeschoss zwei Wohnungen (eine Haupt- und eine Einlegerwohnung) – und obendrauf sollte der eigentliche Entwurfsteil entstehen: ein neues Zuhause für eine junge Familie.
Der Entwurf öffnete das Haus nach oben und schuf helle, flexible Räume mit viel Platz für Wohnen, Spielen und Arbeiten. Holz als Baustoff der Wahl sorgte nicht nur für eine nachhaltige Bauweise, sondern auch für eine warme Atmosphäre. Terrassen und großzügige Fenster sollten den Blick ins Tiroler Oberland holen – Bergkulisse inklusive.
Auch wenn aus dem Projekt am Ende nichts geworden ist: wir mögen es immer noch sehr. Vielleicht gerade, weil es zeigt, wie man mit einer klugen Aufstockung alten Häusern neue Qualitäten geben kann.
Gemeinsam entwickelt mit Jonathan Paljor – einem guten Freund und Architekten aus Wien.
es lohnt sich auch mal seine Seite zu Besuchen! <3








